ORCHARD ISLAND | |
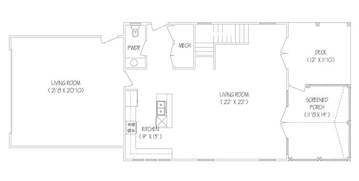
This home is the perfect cottage for spending time on the lake. With its open floor plan, you have room for a crowd but its cozy welcoming appearance sets the tone of making all who enter feel at home. The kitchen is designed to make feeding a crowd easy, with its large island perfect for eating at or serving off of. You’ll find yourself enjoying bright sunny afternoons lounging on the deck, and then spending the beautiful evenings surrounded by family and friends on your screened in porch. Even through the fall and winter months you have plenty of space to feel comfortable, combined with all the large windows and doors this plan provides you the opportunity to enjoy all the amazing views the lake has to offer through the change of seasons.
|
![]() |
FEATURES2000 Square Feet View Floor Plan |
|
![]() |
![]() |
![]() |
| The Lexington 3 Bedrooms, 2 1/2 Baths 3,025 Square Feet |
The Del Monte Manor 3 Bedrooms, 2 1/2 Baths Full Finished Basement |
The Nicole |
| More | More | More |
| 937-492-8640 937-440-0605 937-394-7775 Fax: 937-394-7776 |
Shreves Construction PO BOX 792 Sidney, OH 45365 |
![]() |
![]() |












